Фильтровентиляционная установка ФМС-6000
Благодаря фильтрующим элементам на бумажно-тканевой основе позволяет осуществить полномасштабную очистку воздуха от аэрозолей (в том числе сварочного) и мелкодисперсной сухой неслипающейся пыли, выделяющейся при различных производственных процессах.
Запатентованная система регенерации фильтрующих элементов позволяет производить эффективную регенерацию фильтрующих элементов, без использования сжатого воздуха, работает от электросети.
Фильтры предназначены для очистки воздуха от сварочного аэрозоля, образующегося при сварке, ручной газовой резке металлов, а также для очистки от мелкодисперсной (размеры частиц ≥0,3мкм) сухой, невзрывоопасной, неслипающейся пыли, образующейся при порошковой окраске изделий, механической обработке изделий из металла и пластмасс.
Максимальная температура загрязненного воздуха не должна превышать 60ºС.
Применение:
- сварочные цеха
- цеха механической обработки металла
- цеха механической обработки пластмасс
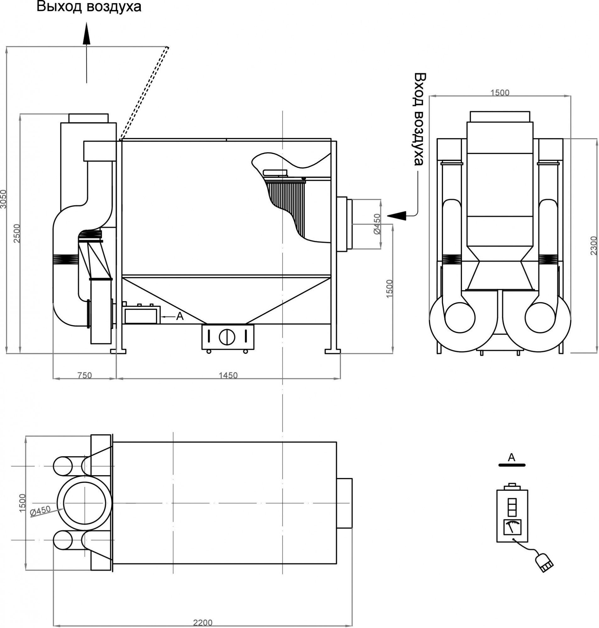
Фильтр состоит из корпуса с входным патрубком, снабжен ножками для установки на пол. Внутри корпуса по ходу воздушного потока установлен отбойник, для предотвращения попадания крупных частиц, окалины и искр на основные фильтрующие элементы картриджного типа. Внутри фильтрующих элементов расположена система регенерации, а её привод на крышке фильтрующих элементов. Включение электродвигателя системы регенерации осуществляется автоматически через (50-60) сек. после включения вентилятора.
Фильтр снабжен вентилятором и пусковой аппаратурой, кабелем питания длиной 5м, разъёмом для подключения к электросети.
У фильтра ФМС-6000 стоят 2 фильтрующих элемента на целлюлозно-бумажной основе.
|
Производительность вентилятора, м3/час
|
6000 |
|
Мощность электродвигателя вентилятора, кВт
|
6 |
|
Степень очистки, %
|
98 |
|
Масса, кг
|
240 |
- угольной кассетой для доочистки газообразной фазы сварочного аэрозоля.





